Welcome to Central Maine

383 Commercial Street, Unit 315Portland, ME 04101Price: $625,000

  • Price: $625,000
  • Est. Mortgage of $/month
  • 9 Days on Market
$
$
%
$/month over payments
Federal 30-year interest rate: 6.22% last updated on Dec 11, 2025
* All Figures are estimates. Check with your bank or proposed mortgage company for actual interest rates.
This product uses the FRED® API but is not endorsed or certified by the Federal Reserve Bank of St. Louis.
  • $625,000List Price
  • 1Bedrooms
  • 1Bathrooms
  • 777Square Feet
Active

Listing Tools

Listed by Vitalius Real Estate Group,LLC
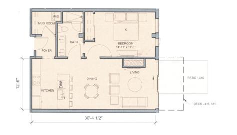
This stylish 1-bedroom, 1-bath condo at Hobson's Landing offers the perfect blend of modern comfort and Portland convenience. Designed with clean lines and thoughtful finishes, the open floor plan features a sleek kitchen with quartz countertops, stainless steel appliances, and an island that flows easily into the living space - ideal for entertaining or relaxing at home. Oversized windows bring in natural light and frame the lush shared terrace beyond, while the private bedroom offers a peaceful retreat with ample closet storage. The unit also features a private patio for ultimate relaxation. Residents of the very pet-friendly Hobson's Landing enjoy premier amenities, including concierge services, fitness and community rooms, a gorgeous shared terrace, and guest suite for overnight visitors (Portland's most cost-effective hotel room alternative!). With a dedicated indoor parking space, in-unit laundry, and private storage unit, everyday living is both easy and elevated. Step outside your door to explore Portland's celebrated Old Port restaurants, galleries, shops, and the working waterfront - everything you love about the city is just moments away.

Property Details of 383 Commercial Street, Unit 315

Property Details

Interior Features

Exterior Features

Utilities and Appliances

Other Details

Map Location

Listing data is derived in whole or in part from the Maine IDX & is for consumers' personal, non commercial use only. Dimensions are approximate and not guaranteed. All data should be independently verified. ©2025 Maine Real Estate Information System, Inc. All Rights Reserved. equal opportunity housing logo   Privacy Policy

Coldwell Banker Plourde Real Estate participates in ©2025 Maine Listings Internet Data Exchange program, allowing us to display other Maine IDX Participants' listings. This website does not display complete listings. Certain listings of other real estate brokerage firms have been excluded. Mortgage figures are estimates. Check with your bank or proposed mortgage company for actual interest rates. This product uses the FRED® API but is not endorsed or certified by the Federal Reserve Bank of St. Louis.

Hi there! How can we help you?

Contact us using the form below or give us a call.

Send Us A Message:

I agree to receive marketing and customer service calls and text messages from Coldwell Banker Plourde Real Estate. To opt out, you can reply 'stop' at any time or click the unsubscribe link in the emails. Consent is not a condition of purchase. Msg/data rates may apply. Msg frequency varies. Privacy Policy.

Do not fill in this field:

This site is protected by reCAPTCHA and the Google Privacy Policy and Terms of Service apply.