Welcome to Central Maine

286 Pond RoadWayne, ME 04284Price: $699,750

  • Price: $699,750
  • Est. Mortgage of $/month
  • 56 Days on Market
$
$
%
$/month over payments
Federal 30-year interest rate: 6.22% last updated on Nov 6, 2025
* All Figures are estimates. Check with your bank or proposed mortgage company for actual interest rates.
This product uses the FRED® API but is not endorsed or certified by the Federal Reserve Bank of St. Louis.
  • $699,750List Price
  • 4Bedrooms
  • 3Bathrooms
  • 3.46Acreage
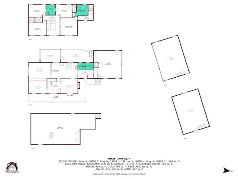
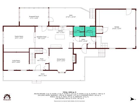
  • 2,595Square Feet
Active

Listing Tools

Listed by LAER
Beautiful Custom Colonial in Picturesque Wayne, Maine! Welcome to this beautifully maintained custom-built Colonial, nestled in the heart of Wayne, Maine, just minutes from a collection of serene lakes and peaceful ponds. Built in 1997 and offering 2,595 sq ft of thoughtfully designed living space, this home blends classic New England charm with modern comforts. Step inside to discover 4 spacious bedrooms and 3 full bathrooms, including a luxurious primary suite featuring a jetting soaking tub and an impressive cedar walk-in closet. The main level offers exceptional convenience with a first-floor laundry room, ideal for ease and functionality. Entertain or unwind in the heart of the home-a kitchen complete with granite countertops, custom cabinetry, and quality finishes. Flow effortlessly into the dining and living areas, perfect for hosting or cozy nights in. Enjoy the best of Maine's seasons from your private back deck and screened-in porch, offering peaceful views and a perfect spot for morning coffee or evening relaxation. Set on a quiet, tree-lined lot in one of the area's most charming and sought-after towns, this home combines privacy with proximity-just a short drive to outdoor recreation, lakeside adventures, and the tight-knit community of Wayne. This is more than just a house-it's a lifestyle. Don't miss the opportunity to own this lovingly cared-for Maine gem. Take the Matterport tour today from your computer or schedule a showing ! Don' miss the two story three bay heated detached garage on the tour

Property Details of 286 Pond Road

Property Details

Interior Features

Exterior Features

Utilities and Appliances

Other Details

Map Location

Listing data is derived in whole or in part from the Maine IDX & is for consumers' personal, non commercial use only. Dimensions are approximate and not guaranteed. All data should be independently verified. ©2025 Maine Real Estate Information System, Inc. All Rights Reserved. equal opportunity housing logo   Privacy Policy

Coldwell Banker Plourde Real Estate participates in ©2025 Maine Listings Internet Data Exchange program, allowing us to display other Maine IDX Participants' listings. This website does not display complete listings. Certain listings of other real estate brokerage firms have been excluded. Mortgage figures are estimates. Check with your bank or proposed mortgage company for actual interest rates. This product uses the FRED® API but is not endorsed or certified by the Federal Reserve Bank of St. Louis.

Hi there! How can we help you?

Contact us using the form below or give us a call.

Send Us A Message:

I agree to receive marketing and customer service calls and text messages from Coldwell Banker Plourde Real Estate. To opt out, you can reply 'stop' at any time or click the unsubscribe link in the emails. Consent is not a condition of purchase. Msg/data rates may apply. Msg frequency varies. Privacy Policy.

Do not fill in this field:

This site is protected by reCAPTCHA and the Google Privacy Policy and Terms of Service apply.