Welcome to Central Maine

28 First RangewayWaterville, ME 04901Price: $335,000

  • Price: $335,000
  • Est. Mortgage of $/month
  • 58 Days on Market
$
$
%
$/month over payments
Federal 30-year interest rate: 6.22% last updated on Nov 6, 2025
* All Figures are estimates. Check with your bank or proposed mortgage company for actual interest rates.
This product uses the FRED® API but is not endorsed or certified by the Federal Reserve Bank of St. Louis.
  • $335,000List Price
  • 4Bedrooms
  • 3Bathrooms
  • 0.55Acreage
  • 3,080Square Feet
Active

Listing Tools

Listed by Better Homes & Gardens Real Estate/The Masiello Group (207-649-6826)
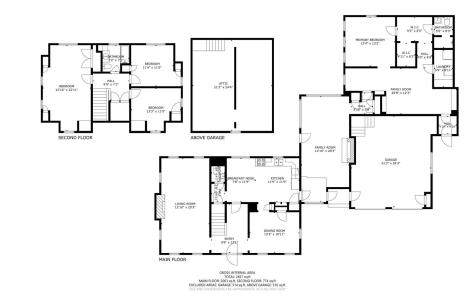
Nestled on one of Waterville's most sought-after streets, this iconic Cape is full of character, space, and possibilities. With 3,080 square feet of living space, the property features a spacious 3-bedroom, 1.5-bath main home and a bonus adjoining 1-bedroom, 1-bath suite-perfect for multi-generational living, hosting guests, or enjoying the entire home as a single-family residence. Step inside the main house to find a spacious kitchen, a front-to-back living room with beautiful wood floors, and a dining room with classic built-ins. A sweet half bath rounds out the first floor. Upstairs, three bedrooms and a full bath provide plenty of room, and the front-to-back primary bedroom features more wood floors, built-ins, and ample storage. The attached single-level suite offers flexibility with its own private entrance, a large fireplaced den to the rear deck, a spacious bedroom, a full bath with new flooring, and a foyer/office area-an ideal retreat for extended family or guests. Set on a private .55-acre lot, this home offers expansive front and back yards, all within a vibrant neighborhood setting. Conveniently located near shopping, Colby College, I-95, downtown Waterville, the Paul J. Schupf Art Center, Maine Film Center, and more, this property truly has it all. A home with great bones, wonderful light, and room to make it your own-a place to settle in and create something special.

Property Details of 28 First Rangeway

Property Details

Interior Features

Exterior Features

Utilities and Appliances

Other Details

Map Location

Listing data is derived in whole or in part from the Maine IDX & is for consumers' personal, non commercial use only. Dimensions are approximate and not guaranteed. All data should be independently verified. ©2025 Maine Real Estate Information System, Inc. All Rights Reserved. equal opportunity housing logo   Privacy Policy

Coldwell Banker Plourde Real Estate participates in ©2025 Maine Listings Internet Data Exchange program, allowing us to display other Maine IDX Participants' listings. This website does not display complete listings. Certain listings of other real estate brokerage firms have been excluded. Mortgage figures are estimates. Check with your bank or proposed mortgage company for actual interest rates. This product uses the FRED® API but is not endorsed or certified by the Federal Reserve Bank of St. Louis.

Hi there! How can we help you?

Contact us using the form below or give us a call.

Send Us A Message:

I agree to receive marketing and customer service calls and text messages from Coldwell Banker Plourde Real Estate. To opt out, you can reply 'stop' at any time or click the unsubscribe link in the emails. Consent is not a condition of purchase. Msg/data rates may apply. Msg frequency varies. Privacy Policy.

Do not fill in this field:

This site is protected by reCAPTCHA and the Google Privacy Policy and Terms of Service apply.